CENTURY 21
Fine Homes & Estates®
- Address : 175 Park Avenue, Madison,United States
About
Fine homes and estates are exclusive by design. Which is why it takes more than traditional real estate acumen to buy and sell them. You need the personalized service of a professional who understands your expectations. And responds with unique listings and appropriate buyers. With CENTURY 21 Fine Homes & Estates®, you can be assured of both. You will have their full attention and relentless dedication to find or place your perfect home.
Contact
Sort by
- Price - High To Low
- Newest
- Lot area - High To Low
- Sqft - High To Low
- Favorites
▾
- Price - Low To High
- Price - High To Low
- Newest
- Lot area - Low To High
- Lot area - High To Low
- Sqft - Low To High
- Sqft - High To Low
- Favorites
$999,999
3Beds
3Baths
3,158Sqft
Pigeon Forge, Tennessee, 37863, United States
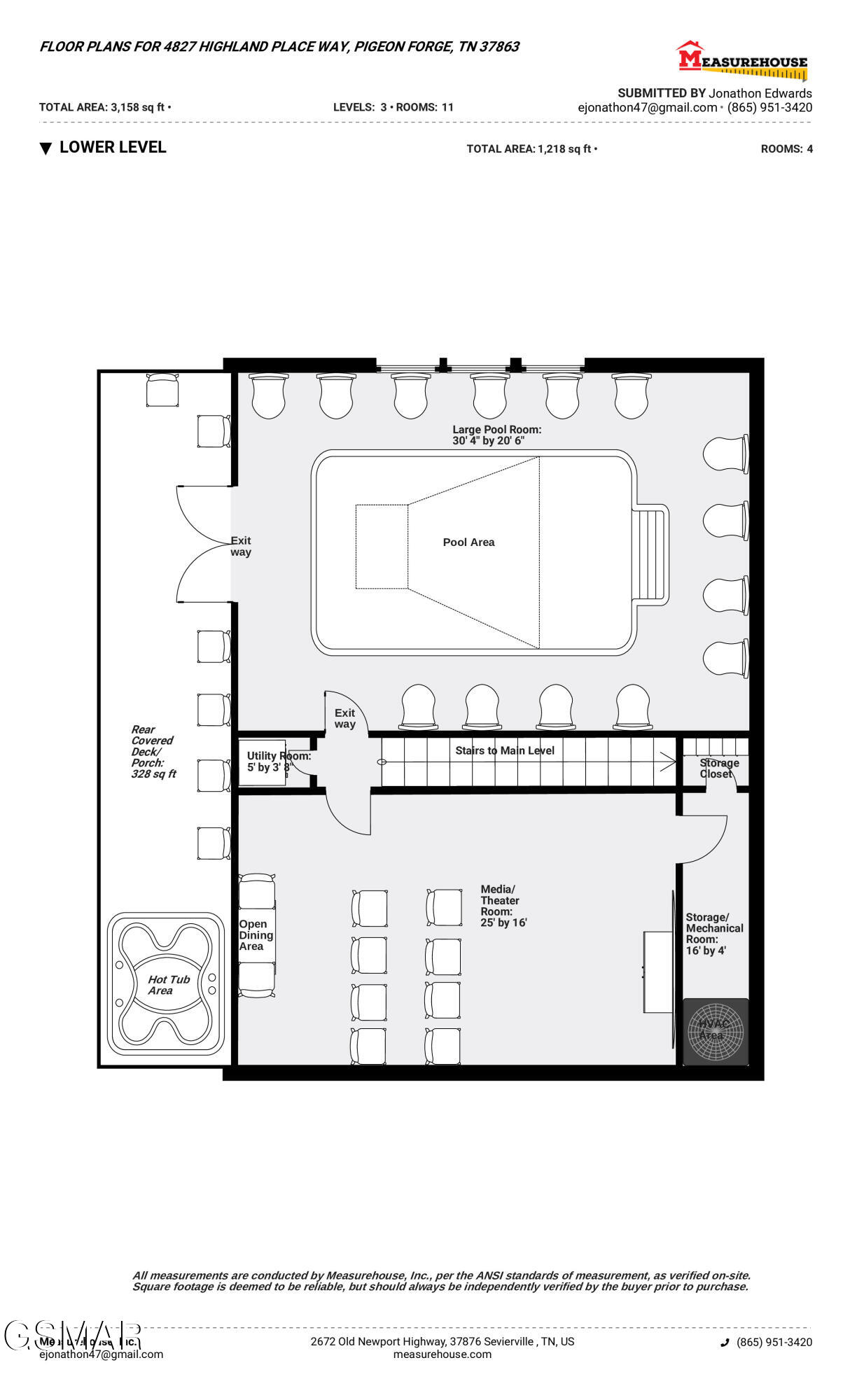
Rental Projection of 120,000! This gorgeous mountainside indoor pool cabin checks every box! Over 3,100 square feet of well-appointed living space, sweeping Smoky Mountain views from two rear deck levels, and a location that puts you just minutes from downtown Pigeon Forge, Dollywood, Gatlinburg and the Great Smoky Mountains National Park.
CENTURY 21
$999,999
4827 Highland Place Way
3Beds
3Baths
3,158Sqft
Pigeon Forge, Tennessee, 37863, United States
Rental Projection of 120,000! This gorgeous mountainside indoor pool cabin checks every box! Over 3,100 square feet of well-appointed living space, sweeping Smoky Mountain views from two rear deck levels, and a location that puts you just minutes from downtown Pigeon Forge, Dollywood, Gatlinburg and the Great Smoky Mountains National Park. Located in desirable Sherwood Forest gated resort community, featuring an outdoor pool and clubhouse, this cabin is as turnkey as it gets. Inside, the main level welcomes you with vaulted ceilings, an open living room with a cozy fireplace, a dining area, full kitchen, and two private bedroom suites each with their own bath and closet. Head upstairs and youll find a sprawling primary suite that doubles as a recreation room with its own private bath. The lower level is built for family fun with a pool room, dedicated media and theater room, utility room, with extra storage rounding out the space. Luxury, location, and rental income all in one cabin.
Read More
CENTURY 21
$999,999
4827 Highland Place Way
3Beds
3Baths
3,158Sqft
$999,999
Pigeon Forge, Tennessee, 37863, United States
$999,999
35.37Acre
Waxahachie, Texas, 75167, United States
Please use GPS for most accurate directions.
CENTURY 21
$999,999
1001 Ovilla Road
35.37Acre
Waxahachie, Texas, 75167, United States
Please use GPS for most accurate directions.
Read More
CENTURY 21
$999,999
72.75Acre
Columbus, Indiana, 47201, United States
Beautiful and private 72.75 woodland acres with generous (approximately 10 acres) plateau-like terrain suitable for building atop high hill for fantastic views of Grandview Lake, peace and solitude. The potential is endless.
CENTURY 21
$999,999
750 West
72.75Acre
Columbus, Indiana, 47201, United States
Beautiful and private 72.75 woodland acres with generous (approximately 10 acres) plateau-like terrain suitable for building atop high hill for fantastic views of Grandview Lake, peace and solitude. The potential is endless. Enjoy this lovely secluded retreat-like setting in heavily wooded hills 10 miles from Columbus (shopping, work and schools), close to Brown County State Park (15 miles) and Bloomington (35 miles). Major cities in driving distance include Indianapolis, Louisville and Cincinnati. Currently listed as Classified Forest land; tax information will be changing once removed from that classification.
Read More
CENTURY 21
$999,999
Gardena, California, 90247, United States
Bread and butter units in the heart of Gardena (LA city area). Front house is very spacious with open floor plan. 3 bedrooms 2 baths with a 2 car garage. Duplex in the back with 2 bedrooms 1 bath each. Perfect for owner occupant or investor. The duplex in the back is accessed from 168th St. which makes it convenient to get in and out for parking.
CENTURY 21
$999,999
840 W 167th Street
Gardena, California, 90247, United States
Bread and butter units in the heart of Gardena (LA city area). Front house is very spacious with open floor plan. 3 bedrooms 2 baths with a 2 car garage. Duplex in the back with 2 bedrooms 1 bath each. Perfect for owner occupant or investor. The duplex in the back is accessed from 168th St. which makes it convenient to get in and out for parking. Units have been partially upgraded and are up to LA city rental standards. Located close to schools, parks, shopping, dining and freeways!
Read More
CENTURY 21
$999,999
5Beds
5Baths
4,188Sqft
Hurricane, Utah, 84737, United States
This home is truly a standout opportunity in a prime location, offering nearly half an acre of space, privacy, and exceptional curb appeal with recently redone landscaping. The property features a pool and spa with a beautiful waterfall that can be seen and heard while sitting in the house.
CENTURY 21
$999,999
291 S 1150 W
5Beds
5Baths
4,188Sqft
Hurricane, Utah, 84737, United States
This home is truly a standout opportunity in a prime location, offering nearly half an acre of space, privacy, and exceptional curb appeal with recently redone landscaping. The property features a pool and spa with a beautiful waterfall that can be seen and heard while sitting in the house. The perfect layout design makes it versatile meanings that no matter what your needs are this home can check all the boxes. In addition, the 900-square-foot ADU adds tremendous value and flexibility, whether for rental income or private use. With its combination of land, amenities, and versatility, this property has everything you could want and priced to sell. All information deemed reliable however buyer to verify!
Read More
CENTURY 21
$999,999
6Beds
4Baths
18,730.80Sqft
Keyport, New Jersey, 07735, United States
LOCATION LOCATION LOCATION - CASH COW INVESTMENT PROPERTY GENERATING 6,950/ MONTH OF RENT. COMPLETELY UPDATED DUPLEX WITH DETACHED 2 CAR GARAGE 15 MINUTES TO THE NEW NETFLIX HEADQUARTERS LOCATED IN EATONTOWN. OVERSIZED CORNER LOT. 3 BEDROOMS AND 2 BATHS PER UNIT. PREPARE TO BE AMAZED! SHORT DRIVE TO TRAIN STATION & FERRY! RENT ROLL 3250 UNIT 1, 3200 UNIT 2, 500 GARAGES.
CENTURY 21
$999,999
9 Kearney Street
6Beds
4Baths
18,730.80Sqft
Keyport, New Jersey, 07735, United States
LOCATION LOCATION LOCATION - CASH COW INVESTMENT PROPERTY GENERATING 6,950/ MONTH OF RENT. COMPLETELY UPDATED DUPLEX WITH DETACHED 2 CAR GARAGE 15 MINUTES TO THE NEW NETFLIX HEADQUARTERS LOCATED IN EATONTOWN. OVERSIZED CORNER LOT. 3 BEDROOMS AND 2 BATHS PER UNIT. PREPARE TO BE AMAZED! SHORT DRIVE TO TRAIN STATION & FERRY! RENT ROLL 3250 UNIT 1, 3200 UNIT 2, 500 GARAGES. EXPENSES: INSURANCE 1400, TAXES 13,219.NOI 68,781. NOT IN A FLOOD ZONE!
Read More
CENTURY 21
$999,999
9 Kearney Street
6Beds
4Baths
18,730.80Sqft
$999,999
Keyport, New Jersey, 07735, United States
$999,999
6Beds
5Baths
4.00Acre
London, Kentucky, 40741, United States
I75 toward Knoxville, take Exit 38 onto 192, Turn Right onto W Laurel Rd, Turn Right onto Parker Road, Left onto Woods Edge, Home is on the left. Latitude: 37.103156 Longitude: -84.
CENTURY 21
$999,999
484 Woods Edge Drive
6Beds
5Baths
4.00Acre
London, Kentucky, 40741, United States
I75 toward Knoxville, take Exit 38 onto 192, Turn Right onto W Laurel Rd, Turn Right onto Parker Road, Left onto Woods Edge, Home is on the left. Latitude: 37.103156 Longitude: -84.128839
Read More
CENTURY 21
$999,999
5Beds
5Baths
4,173Sqft
Apollo Beach, Florida, 33572, United States
Waterfront one of a kind Custom home! Welcome to MiraBay, an exclusive gated waterfront community where luxury meets coastal charm. This completely renovated 5-bedroom, 4-bath single-family home offers over 4,100 sq. ft. of sophisticated living space designed for both comfort and entertaining.
CENTURY 21
$999,999
609 Manns Harbor Dr
5Beds
5Baths
4,173Sqft
Apollo Beach, Florida, 33572, United States
Waterfront one of a kind Custom home! Welcome to MiraBay, an exclusive gated waterfront community where luxury meets coastal charm. This completely renovated 5-bedroom, 4-bath single-family home offers over 4,100 sq. ft. of sophisticated living space designed for both comfort and entertaining. NEW Bathrooms, Kitchen, Floors, Pool/ Spa, Lighting, AC, Garage Doors AND Landscaping! A complete tropical OASIS with the lighting to show it off! Step inside to discover sleek contemporary finishes, marble floors, and designer lighting throughout. The gourmet kitchen is a showpiece, featuring high-end appliances, stone countertops, a custom walk-in pantry, and a butlers pantry, perfect for hosting in style. The open floor plan seamlessly connects to a spacious dining room and bright living areas with sliding glass doors leading out to your private pool and spa oasis. Enjoy resort-style outdoor living with fire features, sparkling water views, and lush tropical landscaping that create a serene coastal escape. The primary suite is conveniently located downstairs, offering privacy and luxury with a spa-inspired bathroom and elegant finishes. Upstairs, youll find a large bonus room, private balcony, and additional bedrooms, ideal for guests, family, or a home office. A three-car garage and thoughtful, high-end updates complete this exceptional home. Experience luxury waterfront living in one of the areas most desirable coastal communities.
Read More
CENTURY 21
$999,999
609 Manns Harbor Dr
5Beds
5Baths
4,173Sqft
$999,999
Apollo Beach, Florida, 33572, United States
$999,999
4Beds
4Baths
5,238Sqft
Maywood, California, 90270, United States
4plex
CENTURY 21
$999,999
6048 Woodward Ave.
4Beds
4Baths
5,238Sqft
Maywood, California, 90270, United States
4plex
Read More
CENTURY 21
$999,999
6048 Woodward Ave.
4Beds
4Baths
5,238Sqft
$999,999
Maywood, California, 90270, United States
$999,999
6Beds
3Baths
1,668Sqft
Ozone Park, New York, 11420, United States
Beautiful upgraded single family home in a two-family zone, This stunning property features two separate units, each offering 3 spacious bedrooms and 1 full bathroom, perfect for extended or large families or use it as one big home, enjoy modern upgraded kitchens with granite countertops and matching backsplashes.
CENTURY 21
$999,999
13108 Sutter Avenue
6Beds
3Baths
1,668Sqft
Ozone Park, New York, 11420, United States
Beautiful upgraded single family home in a two-family zone, This stunning property features two separate units, each offering 3 spacious bedrooms and 1 full bathroom, perfect for extended or large families or use it as one big home, enjoy modern upgraded kitchens with granite countertops and matching backsplashes. Each room is equipped with dual electric heating and cooling units for year round comfort. The finish walkout basement includes its own full bathroom, ideal for guests or additional living space. Outside you will find a nice sized backyard and extra-long driveway that fits up to 5 cars. This one wont last
Read More
CENTURY 21
$999,999
13108 Sutter Avenue
6Beds
3Baths
1,668Sqft
$999,999
Ozone Park, New York, 11420, United States
$999,999
4Beds
6Baths
9,000Sqft
Newberry Springs, California, 92365, United States
This is a RARE opportunity! This unique dome home is a registered historical landmark. It has over 9000 sq. ft on 40 acres fenced! 4 domes & 2 towers, plus HUGE attached garage! 4 massive bedrooms, each with their own bath, plus 1 guest bath downstairs. Large living room, separate family room, formal dining room, library and game room. Large kitchen with lots of counter and cabinet space.
CENTURY 21
$999,999
45985 Cottonwood Road
4Beds
6Baths
9,000Sqft
Newberry Springs, California, 92365, United States
This is a RARE opportunity! This unique dome home is a registered historical landmark. It has over 9000 sq. ft on 40 acres fenced! 4 domes & 2 towers, plus HUGE attached garage! 4 massive bedrooms, each with their own bath, plus 1 guest bath downstairs. Large living room, separate family room, formal dining room, library and game room. Large kitchen with lots of counter and cabinet space. Laundry room and 3 storage rooms. 4-car garage with 1100 sq. ft. above the garage for work or craft room. Driveway wraps around the property. 5 evap coolers for summer. Enclosed front porch, Fire pit, and large outside deck. 10 acres fenced with 900 fruit, nut & shade trees - and full water rights. Playground in the side yard, plus open yard on all four sides of the property. There is also a 2 BD, 2 BA manuf home that could be a rental unit. Additional building in back currently used as a workshop with fully functional bathroom. This property to be sold as is - work is continuing inside and outside for improvements and upgrades. This is TRULY a unique property. Owner planned to have a bed and breakfast and nursery. However, possibilities are endless. Could also be an RV park with plenty of room to park more than 100 RVs - income opportunity! Very near the 40 freeway, less than 1/4 mile from Newberry Road.
Read More
CENTURY 21
$999,999
45985 Cottonwood Road
4Beds
6Baths
9,000Sqft
$999,999
Newberry Springs, California, 92365, United States
$999,999
15.12Acre
Banning, California, 92220, United States
Welcome to your own private slice of country paradise, with breathtaking panoramic views! Sitting on just over 15 acres, this property has everything you need for peaceful ranch living with all the modern updates already done. If youre looking for an investment property this land has been has an opportunity with the county to be sub divided.
CENTURY 21
$999,999
11055 Sunset
15.12Acre
Banning, California, 92220, United States
Welcome to your own private slice of country paradise, with breathtaking panoramic views! Sitting on just over 15 acres, this property has everything you need for peaceful ranch living with all the modern updates already done. If youre looking for an investment property this land has been has an opportunity with the county to be sub divided. The main home has 4 bedrooms and 2 bathrooms, freshly updated with new paint, flooring, windows, HVAC, electrical, and more. The guest house offers 2 bedrooms and 2 bathrooms, perfect for family, friends, or even rental income. Both homes have brand-new roofs and new septic systems, so you can move right in without a worry. Out on the property, you’ll find a barn structure electric fencing for goats, chicken coops, and even a solar-powered duck pond, plenty of room for horses- a dream setup for animal lovers or anyone craving that farm-to-table lifestyle. There are also two very large ponds on the property that just need filled and maintained. There’s tons of space to spread out, explore, and enjoy those mountain views, all while being just a short drive from town. If you’ve been looking for room to breathe, a place to grow, and a spectacular ranch that’s ready for your next adventure.
Read More
CENTURY 21
Favorite this home
Enter your email to continue
or
By signing in you agree to UniqueHomes Terms of Use and Privacy Policy
Loading properties...

