There is no favorite listings!
$805,000

375 Winter Park Cir

3
Beds
3
Bath
3,650 Sqft

Smithville, Tennessee, 37166, United States

About the Property

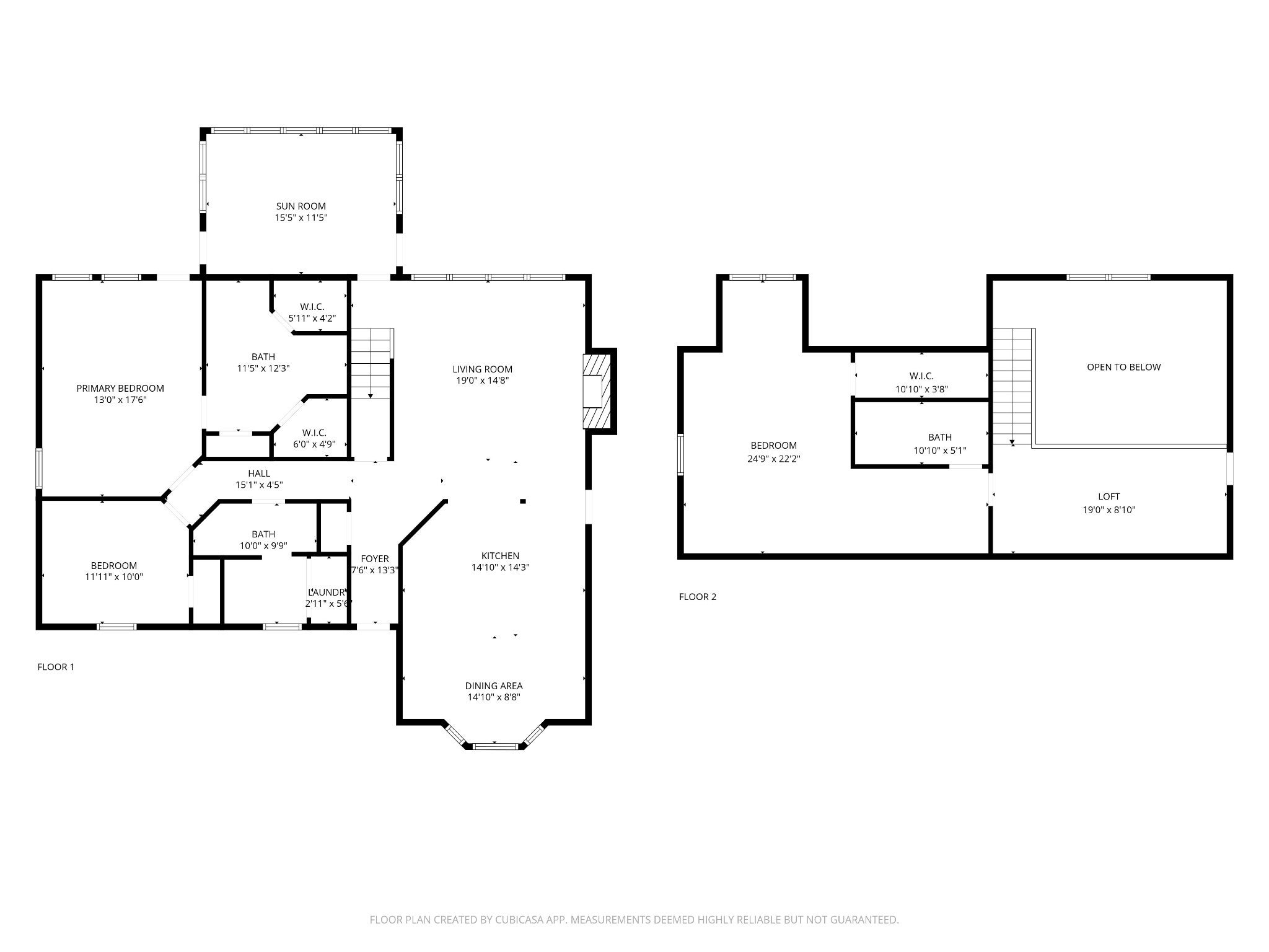
This property features almost 4 acres with a clear, unrestricted view of Center Hill Lake and includes 11 total lots—six connecting and five located across the road. The home offers three bedrooms and three bathrooms, with two bedrooms and two bathrooms on the main floor and an additional bedroom, bathroom, and sitting area upstairs that opens to the main living room below. The full basement is heated and cooled, offering endless possibilities for expansion, storage, or recreation. The main floor includes a large eat-in kitchen with a semi-open layout to the living area, a sunroom connecting to the deck, and a spacious primary suite with two walk-in closets and direct deck access. The home provides beautiful lake views from both the main level and the basement. Outdoor spaces include a large deck, separate sitting areas, and a dedicated fire pit area to enjoy the setting. Additional features include an 8-inch poured concrete basement wall, wood-burning fireplaces, hardwood, carpet, and linoleum flooring, and a concrete driveway with gated entry at the end of the drive as well as a gate at the community entrance. The roof is approximately five years old, and the 3-ton HVAC unit is about four years old. The property sits on a gated road and offers both privacy and exceptional lake views.

View More
Property Type
Residential
Bedroom

3
Bathroom

3
Area

3,650 Sqft
SmithvilleTennessee
×

Features

Smithville, Tennessee, 37166, United States
Slide
Agent info
Contact Agent


America’s Most Expensive Homes
Alabama Real Estate | Alaska Real Estate | Arizona Real Estate | Arkansas Real Estate | California Real Estate | Colorado Real Estate
 
Connecticut Real Estate | Delaware Real Estate | Florida Real Estate | Georgia Real Estate | Hawaii Real Estate | Idaho Real Estate
 
Illinois Real Estate | Indiana Real Estate | Iowa Real Estate | Kansas Real Estate | Kentucky Real Estate | Louisiana Real Estate
 
Maine Real Estate | Maryland Real Estate | Massachusetts Real Estate | Michigan Real Estate | Minnesota Real Estate | Mississippi Real Estate
 
Missouri Real Estate | Montana Real Estate | Nebraska Real Estate | Nevada Real Estate | New Hampshire Real Estate | New Jersey Real Estate
 
New Mexico Real Estate | New York Real Estate | North Carolina Real Estate | North Dakota Real Estate | Ohio Real Estate | Oklahoma Real Estate
 
Oregon Real Estate | Pennsylvania Real Estate | Rhode Island Real Estate | South Carolina Real Estate | South Dakota Real Estate | Tennessee Real Estate
 
Texas Real Estate | Utah Real Estate | Vermont Real Estate | Virginia Real Estate | Washington Real Estate | West Virginia Real Estate
 
Wisconsin Real Estate | Wyoming Real Estate

Style Selector
Select the layout
Choose the theme
Preset colors
No Preset
Select the pattern