There is no favorite listings!
$3,749,900

876 Forsyth Street

Boca Raton, Palm Beach, 33487, United States

About the Property

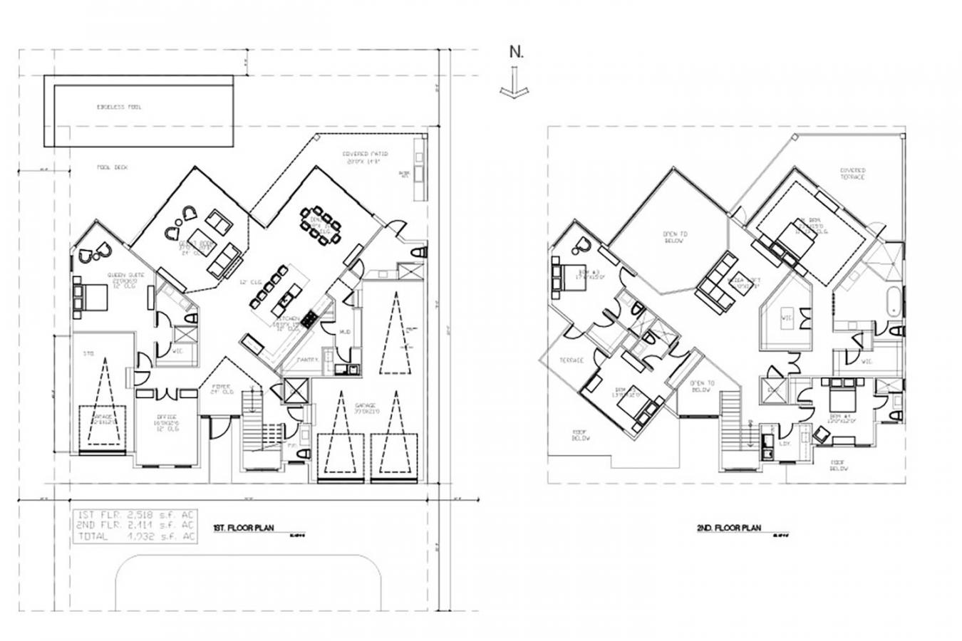
WATERFRONT BUILDERS & INVESTORS – Dont miss this opportunity to secure prime South Florida real estate in Boca Raton. This ready-to-build land with new seawall & boat dock stands out in the luxury market with direct ocean access and an A location in Boca Raton. Build a dream home with every indulgence highlighting the view of the Intracoastal waterway and a lifestyle that blends sun, sophistication, and serenity. Embrace the boating life, the investment potential, and the coastal elegance that this remarkable property offers. Opportunities to build on a deep-water, 90′ frontage lot in Boca Raton are exceedingly rare. This waterfront property wont last long, make it yours and start living the luxury coastal life youve been dreaming of. Some photos are virtually staged. Discover an unparalleled waterfront opportunity in Boca Ratons prestigious Boca Keys community. This build-ready 0.23-acre parcel features 90 feet of deep-water frontage and a new 90 seawall with a private dock on a wide canal just one lot off the Intracoastal Waterway. It is an ideal canvas for a custom luxury estate of 5,000 sq ft with a private pool and multi-car garage. 876 Forsyth Street promises the ultimate South Florida lifestyle. Situated on a wide, navigable canal just one lot off the Intracoastal, this property offers direct ocean access with no fixed bridges is a true boaters dream. It features a new 90 seawall and a private deep-water dock already in place, capable of accommodating your yacht or sport fishing boat. This existing infrastructure saves significant time and expense in the construction process. With nearly 10,000 sq ft Build-Ready Lot, this 9,932 sq ft (approximately 90 x 110) of prime land is already cleared and ready for a new home. Utilities are available at the street for easy hookup. The parcel is zoned R-1-B (Single Family Residential) ideal for designing a custom 5,000 sq ft estate with a private pool, cabana, multi-car garage, and more. The waterfront property is located East of US-1 in the upscale Boca Keys enclave of northeast Boca Raton, the property sits at the end of a quiet cul-de-sac with no through traffic. The neighborhood has no homeowners association, meaning no fees or design restrictions. You have full creative freedom to build your luxury home exactly as you envision. Living on the water, means embracing an unmatched boating lifestyle. From your private dock, you can explore South Floridas waterways at a moments notice. Whether its an early morning paddleboard on the Intracoastal or a weekend voyage to the Bahamas. Deep, navigable water provides quick, direct access to the Atlantic Ocean. The Boca Raton Inlet is only 5 miles away by water, so you can be offshore fishing within minutes. Take a leisurely cruise north along the Intracoastal to Delray Beachs dockside restaurants, or head south to Lake Bocas famous sandbar, a popular lively gathering spot where boaters anchor to socialize and swim in the warm shallows. Beyond its boating appeal, this location provides access to all the conveniences and luxuries of Boca Ratons coveted lifestyle. Downtown Bocas upscale shopping, dining, and cultural attractions are a short drive away. From the luxury boutiques and fine restaurants of Mizner Park to events at the Town Center Mall. Pristine beaches and numerous parks are also just minutes from your door. Families will appreciate the proximity to top-rated schools, and golf enthusiasts can tee off at several nearby championship courses. Boca Raton is renowned for its beautiful landscaping, safety, and affluent yet relaxed atmosphere. Plus, with this property near the citys northern border, youre only about 4 miles south of Delray Beachs famed Atlantic Avenue with a vibrant hub of cafes, art galleries, and nightlife. In short, this locale truly offers the best of both worlds: a peaceful waterfront retreat with easy access to world-class amenities and entertainment in both Boca Raton and Delray Beach Florida. Boca Keys and the surrounding waterfront neighborhoods are experiencing a renaissance of new luxury construction. This trend makes the offering as much about future potential as it is about present-day enjoyment. As an investor or builder, youll be in great company among multi-million-dollar custom estates being built nearby. Vacant waterfront land in Boca Raton is exceedingly scarce. Only a handful of buildable waterfront lots come to market in any given year, so this property is a truly rare find. Acquiring this parcel means joining an exclusive club of owners with the opportunity to create a brand-new Intracoastal home from the ground up. With no design restrictions holding you back, you have full creative freedom to craft a masterpiece on this lot, whether you envision a sleek modern showpiece or a timeless coastal villa. The generous dimensions can accommodate a sprawling floor plan with over 5,000 sq ft of living space across two levels, plus ample room for garages and resort-style outdoor amenities. Imagine an infinity-edge pool overlooking the water, a spacious dock for your boat and water toys, and panoramic water views from a second-story balcony. Strong market fundamentals support the investment case for this property. Newly built homes of similar size and location often sell in the high seven to eight figures. The high demand for new luxury homes in Boca Raton, combined with the limited supply of waterfront lots, means a well-designed estate here could command a significant premium in the future. Whether you intend to develop and sell for profit or build your dream home to enjoy for years to come, 876 Forsyth Street represents a compelling long-term investment opportunity.

View More
Property Type
Residential
Boca RatonPalm Beach
×

Features

Boca Raton, Palm Beach, 33487, United States
Slide
Agent info
Contact Agent


America’s Most Expensive Homes
Alabama Real Estate | Alaska Real Estate | Arizona Real Estate | Arkansas Real Estate | California Real Estate | Colorado Real Estate
 
Connecticut Real Estate | Delaware Real Estate | Florida Real Estate | Georgia Real Estate | Hawaii Real Estate | Idaho Real Estate
 
Illinois Real Estate | Indiana Real Estate | Iowa Real Estate | Kansas Real Estate | Kentucky Real Estate | Louisiana Real Estate
 
Maine Real Estate | Maryland Real Estate | Massachusetts Real Estate | Michigan Real Estate | Minnesota Real Estate | Mississippi Real Estate
 
Missouri Real Estate | Montana Real Estate | Nebraska Real Estate | Nevada Real Estate | New Hampshire Real Estate | New Jersey Real Estate
 
New Mexico Real Estate | New York Real Estate | North Carolina Real Estate | North Dakota Real Estate | Ohio Real Estate | Oklahoma Real Estate
 
Oregon Real Estate | Pennsylvania Real Estate | Rhode Island Real Estate | South Carolina Real Estate | South Dakota Real Estate | Tennessee Real Estate
 
Texas Real Estate | Utah Real Estate | Vermont Real Estate | Virginia Real Estate | Washington Real Estate | West Virginia Real Estate
 
Wisconsin Real Estate | Wyoming Real Estate

Style Selector
Select the layout
Choose the theme
Preset colors
No Preset
Select the pattern