There is no favorite listings!
$3,500,000

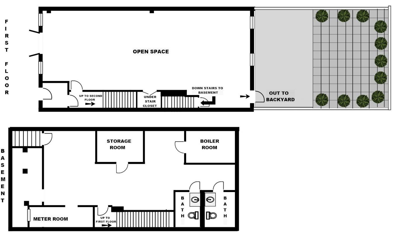
379 ATLANTIC AVENUE

7
Beds
2
Bath

Boerum Hill, New York, 11217, United States

About the Property

Rare Opportunity on Atlantic Avenue: A 4-Story Gem with Endless Possibilities! Seize this grand investment opportunity: Property class three family with one store or office (S3) Historic district Boerum Hill Extension Building dimensions 22x52ft Lock dimensions 22.42ftX80ft Over 3000 ft. of unused space available All dimensions per PROPERTY SHARK Opportunity in one of the most vibrant and sought-after locations in the city! Situated on iconic Atlantic Avenue, this four-story building is delivered vacant, offering a blank canvas to create your dream property. Whether youre a savvy developer, an ambitious investor, or an owner-occupant with a vision, this property is your chance to design a legacy. Key Features: Two spacious bedrooms per floor-perfect for rentals, a multi-family setup, or a luxurious single-family conversion. Full basement for additional storage, workspace, or creative possibilities. Expansive backyard-a rare find in this prime urban location, ideal for entertaining, gardening, or outdoor retreats. Room to build up-unlock even more potential with added floors, subject to zoning approval. Prime Location: Nestled in a stellar neighborhood filled with upscale artisan shops, trendy restaurants, and cultural hotspots. Close to all major transportation hubs for unmatched convenience. A short stroll to shopping, parks, and everything you need for city living at its finest. Potential Galore: This property is perfect for renovators with a vision! Reimagine the space to suit your needs-create a stunning multi-family residence, establish your own store on the ground floor, or develop it into a lucrative mixed-use building. Why Youll Love It: Atlantic Avenue is a hub of activity and charm, where modern living meets historic appeal. This is your chance to be part of a thriving community and join the ranks of the areas exciting growth and transformation. Dont Miss Out! Properties like this dont come around often. Whether youre dreaming of a home, business, or investment, this versatile property has it all. Act now to secure your future! Contact me today for more details and a private showing.

View More
Property Type
Residential
Bedroom

7
Bathroom

2
Boerum HillNew York
×

Features

Boerum Hill, New York, 11217, United States
Slide
Agent info
Contact Agent


America’s Most Expensive Homes
Alabama Real Estate | Alaska Real Estate | Arizona Real Estate | Arkansas Real Estate | California Real Estate | Colorado Real Estate
 
Connecticut Real Estate | Delaware Real Estate | Florida Real Estate | Georgia Real Estate | Hawaii Real Estate | Idaho Real Estate
 
Illinois Real Estate | Indiana Real Estate | Iowa Real Estate | Kansas Real Estate | Kentucky Real Estate | Louisiana Real Estate
 
Maine Real Estate | Maryland Real Estate | Massachusetts Real Estate | Michigan Real Estate | Minnesota Real Estate | Mississippi Real Estate
 
Missouri Real Estate | Montana Real Estate | Nebraska Real Estate | Nevada Real Estate | New Hampshire Real Estate | New Jersey Real Estate
 
New Mexico Real Estate | New York Real Estate | North Carolina Real Estate | North Dakota Real Estate | Ohio Real Estate | Oklahoma Real Estate
 
Oregon Real Estate | Pennsylvania Real Estate | Rhode Island Real Estate | South Carolina Real Estate | South Dakota Real Estate | Tennessee Real Estate
 
Texas Real Estate | Utah Real Estate | Vermont Real Estate | Virginia Real Estate | Washington Real Estate | West Virginia Real Estate
 
Wisconsin Real Estate | Wyoming Real Estate

Style Selector
Select the layout
Choose the theme
Preset colors
No Preset
Select the pattern