There is no favorite listings!
$1,999,989

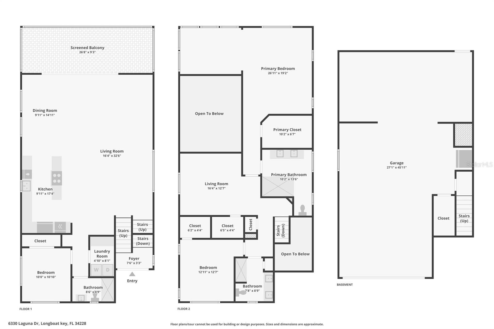
6330 Laguna Dr

3
Beds
3
Bath
0.04 Sqft

Longboat Key, Florida, 34228, United States

About the Property

Modern Beach Home priced aggressively to sell as the owners are relocating. Ocean Views! Private Dock With Boat Lift On The Bay! Exclusive Beach Community, The Ultimate Beach lifestyle! This raised (16ft.), three bedroom (possible 4th), three bath, three plus car garage home is situated perfectly between the gulf and bay. The exclusive, gated community of Laguna Yacht Village is Longboat Keys best kept secret, consisting of only 8 homes on 9 lots. This quiet, private beach and boating development is unmatched! Relax on your deck, on your boat, at the beach or by the private heated and chilled pool in the knowledge that all the grounds, pool and dock infrastructure are maintained by the HOA. The home has been thoroughly modernized and expanded in 2019/2020 by the current owners. New 25 year aluminum roof, pre-painted hardiplank exterior, enclosed upper deck expanded Master Suite, complete bathroom and kitchen renovations, new water heater (2025), 5 ton HVAC, washer, dryer and kitchen appliances (Sub Zero and Bosch) as well as refinished hardwood floors on the main level and newly laid matching hardwood floors throughout the entire upstairs make this effectively a totally new home. Whilst not required by the current owners, the upstairs loft area could easily be converted into a 4th bedroom. The majority of the work was accomplished by Greyhawk of Bradenton. Other lavish touches include new solid panel doors, new 16 feet wide opening glass slider doors, integrated 180 bottle wine fridge, an oversized 3 plus car garage including new door and the installation of a 10,000 lb boat lift at the deeded private dock. Call today to schedule your private Viewing.

View More
Property Type
Residential
Bedroom

3
Bathroom

3
Area

0.04 Sqft
Longboat KeyFlorida
×

Features

Longboat Key, Florida, 34228, United States
Slide
Agent info
Contact Agent


America’s Most Expensive Homes
Alabama Real Estate | Alaska Real Estate | Arizona Real Estate | Arkansas Real Estate | California Real Estate | Colorado Real Estate
 
Connecticut Real Estate | Delaware Real Estate | Florida Real Estate | Georgia Real Estate | Hawaii Real Estate | Idaho Real Estate
 
Illinois Real Estate | Indiana Real Estate | Iowa Real Estate | Kansas Real Estate | Kentucky Real Estate | Louisiana Real Estate
 
Maine Real Estate | Maryland Real Estate | Massachusetts Real Estate | Michigan Real Estate | Minnesota Real Estate | Mississippi Real Estate
 
Missouri Real Estate | Montana Real Estate | Nebraska Real Estate | Nevada Real Estate | New Hampshire Real Estate | New Jersey Real Estate
 
New Mexico Real Estate | New York Real Estate | North Carolina Real Estate | North Dakota Real Estate | Ohio Real Estate | Oklahoma Real Estate
 
Oregon Real Estate | Pennsylvania Real Estate | Rhode Island Real Estate | South Carolina Real Estate | South Dakota Real Estate | Tennessee Real Estate
 
Texas Real Estate | Utah Real Estate | Vermont Real Estate | Virginia Real Estate | Washington Real Estate | West Virginia Real Estate
 
Wisconsin Real Estate | Wyoming Real Estate

Style Selector
Select the layout
Choose the theme
Preset colors
No Preset
Select the pattern