There is no favorite listings!
$2,600,000

440 Blackstrap Road

3
Beds
4
Bath
3,580 Sqft

Falmouth, Maine, 04105, United States

About the Property

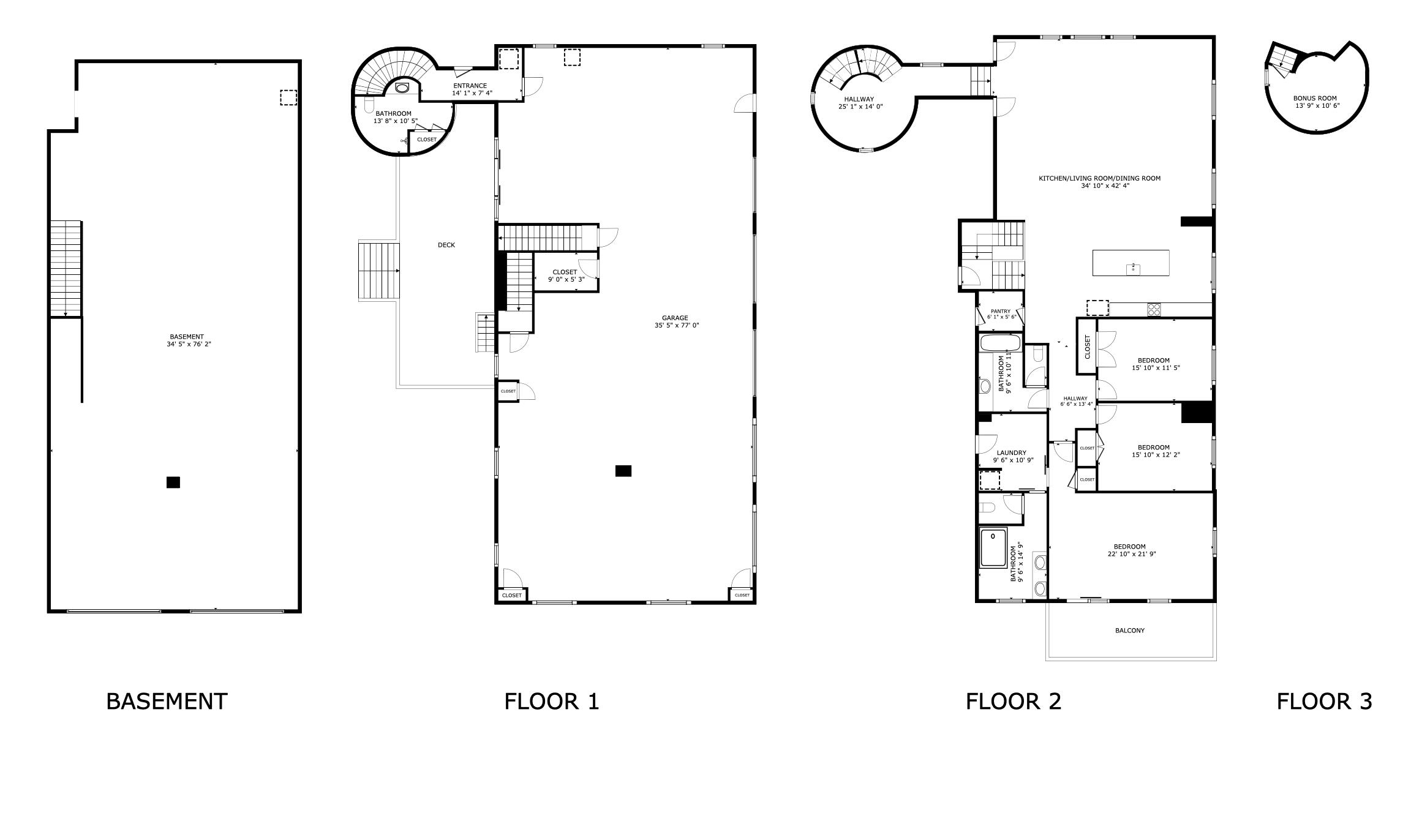
Imagine a life where passion & prestige converge-a private retreat designed not only for living, but for showcasing the things you love most. Presented in the Fine Homes & Estates Collection, this home is nestled on 4.4 acres of pristine land. This spectacularly remodeled barndominium redefines luxury living for the true enthusiast.From the moment you arrive, it's clear this is more than a home—it's a ''Statement Estate''. The property is set back from the road for privacy, yet offers quick access to the cultural heartbeat of the city, the International Jetport, three private Country Clubs & the unmatched natural beauty of Maine's lakes & rugged trails. All of these conveniences are within twenty minutes; the perfect balance of seclusion & connection.Step past the soaring turret into the main level where the showroom takes center stage. With soaring ceilings & dramatic presence, this gallery-style space is designed to elevate your automotive, motorcycle, or marine collection into art. Whether you're entertaining guests or simply admiring your own treasures, the atmosphere is unmatched. On the lower level, form meets function in a professional-grade mechanic's garage. Complete with a car lift & multi-vehicle access, it's the ultimate workshop for anyone who believes that luxury extends to how you care for your collection.Crowning the estate is the third-floor residence—an exquisitely designed, condo-style retreat. Featuring three bedrooms, vaulted ceilings, & an open-concept layout, this space has been crafted with the finest materials: custom cabinetry, stone surfaces, gleaming hardwoods, & designer fixtures. Expansive windows flood the home with light & frame sweeping views of the acreage, ensuring every moment is bathed in serenity. Every inch of this property reflects high-end craftsmanship & thoughtful design, This is not simply a residence, it's a showroom, a sanctuary, & a statement—crafted for the visionary who demands nothing less than extraordinary.

View More
Property Type
Residential
Bedroom

3
Bathroom

4
Area

3,580 Sqft
FalmouthMaine
×

Features

Falmouth, Maine, 04105, United States
Slide
Agent info
CENTURY 21
Contact Agent


America’s Most Expensive Homes
Alabama Real Estate | Alaska Real Estate | Arizona Real Estate | Arkansas Real Estate | California Real Estate | Colorado Real Estate
 
Connecticut Real Estate | Delaware Real Estate | Florida Real Estate | Georgia Real Estate | Hawaii Real Estate | Idaho Real Estate
 
Illinois Real Estate | Indiana Real Estate | Iowa Real Estate | Kansas Real Estate | Kentucky Real Estate | Louisiana Real Estate
 
Maine Real Estate | Maryland Real Estate | Massachusetts Real Estate | Michigan Real Estate | Minnesota Real Estate | Mississippi Real Estate
 
Missouri Real Estate | Montana Real Estate | Nebraska Real Estate | Nevada Real Estate | New Hampshire Real Estate | New Jersey Real Estate
 
New Mexico Real Estate | New York Real Estate | North Carolina Real Estate | North Dakota Real Estate | Ohio Real Estate | Oklahoma Real Estate
 
Oregon Real Estate | Pennsylvania Real Estate | Rhode Island Real Estate | South Carolina Real Estate | South Dakota Real Estate | Tennessee Real Estate
 
Texas Real Estate | Utah Real Estate | Vermont Real Estate | Virginia Real Estate | Washington Real Estate | West Virginia Real Estate
 
Wisconsin Real Estate | Wyoming Real Estate

Style Selector
Select the layout
Choose the theme
Preset colors
No Preset
Select the pattern