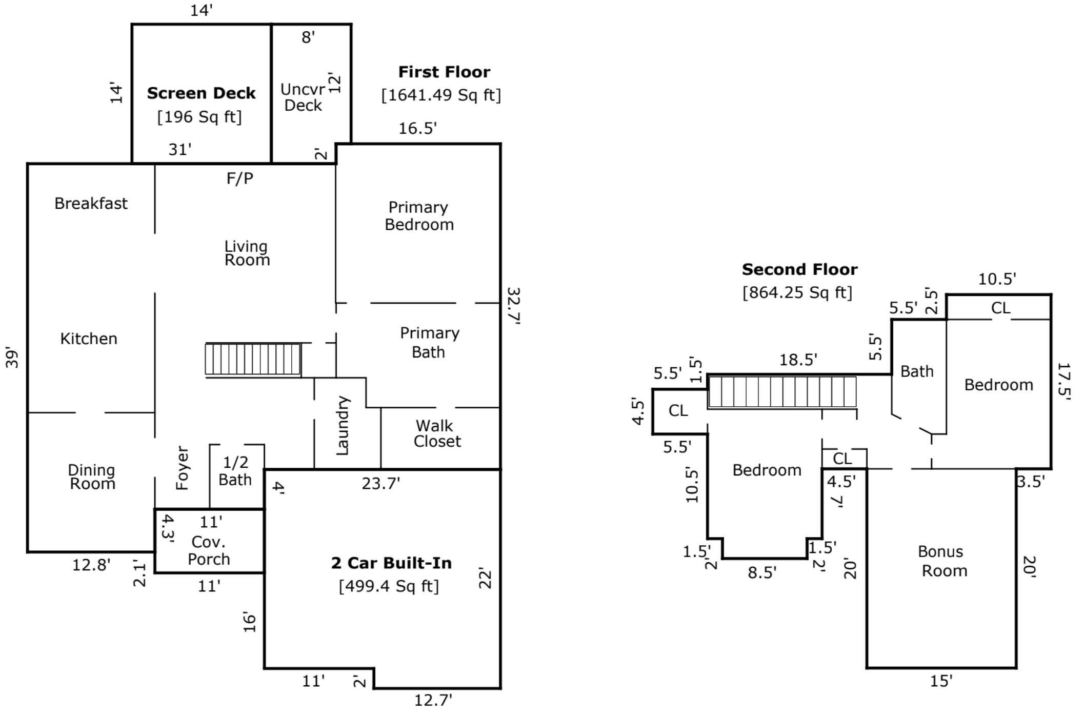
Dont miss this incredible opportunity to own a premier luxury 2,500 SF home in the prestigious Keystone Community! Located at 8530 Keystone Circle, Chattanooga, TN, this stunning brick home is now available for only 513K. Situated on a manicured lot with underground utilities, connected to gas, and NO HOA, this home offers ultimate convenience, just minutes from Gunbarrel Rd (Hamilton Place), I-75, and all the amenities on East Brainerd Rd. As you approach, youll be greeted by an immaculate lawn, a spacious driveway, and a 2-car attached garage. Step onto the front covered porch and enter into a welcoming foyer. Gleaming hardwood floors flow seamlessly throughout the main level, including the staircase. The well crafted floor plan features a formal dining room, a separate breakfast area off the chefs kitchen with stainless steel appliances, tile backsplash, ample cabinetry (including a built-in pantry), and sleek granite countertops with a bar. The grand living room boasts soaring cathedral ceilings and a cozy fireplace. The spacious primary suite is conveniently located on the main level and includes luxurious touches such as high trey ceilings, a spa-like ensuite bath with a soaking tub, separate shower, dual vanities, water closet, and a walk-in closet. Theres also a half guest bath and the laundry room on the main level off the garage entrance. Upstairs, youll find brand new carpet throughout the hallway and two additional bedrooms. A bonus room awaits-perfect for a 4th bedroom, home office, gym, or entertainment space. A full bathroom completes this level, featuring a tub/shower combo and dual vanity. Step outside to the covered, screened-in porch and open wood deck, ideal for enjoying Chattanoogas beautiful weather. Other highlights include a whole-house vacuum system, a newer roof installed in 2023, and an unbeatable location close to dining, shopping, entertainment, and medical facilities. The beautiful Keystone community subdivision offers one entrance/exit off Graysville/Givens Rd, right across the GA state line, and is on a circle drive with underground utilities, including gas, EPB Fiber/Power, and NO HOA! The homeowner is offering a CHOICE Plan 450 One-Year Home Warranty with an accepted offer, giving you peace of mind in your purchase Schedule your private showing today and take advantage of the lower mortgage interest rates. Dont let this one slip away!
8530 Keystone Circle
Chattanooga, Tennessee, 37421, United States
About us
Explore the world of luxury at www.uniquehomes.com! Search renowned luxury homes, unique properties, fine estates and more on the market around the world. Unique Homes is the most exclusive intermediary between ultra-affluent buyers and luxury real estate sellers. Our extensive list of luxury homes enables you to find the perfect property. Find trusted real estate agents to help you buy and sell!
For a more unique perspective, visit our blog for diverse content — discover the latest trends in furniture and decor by the most innovative high-end brands and interior designers. From New York City apartments and luxury retreats to wall decor and decorative pillows, we offer something for everyone.
Get in touch with us
Charlotte, NC 28203

